Smd-5a 42 Simona Drive Dartmouth, Nova Scotia B2X 0C9
$665,900
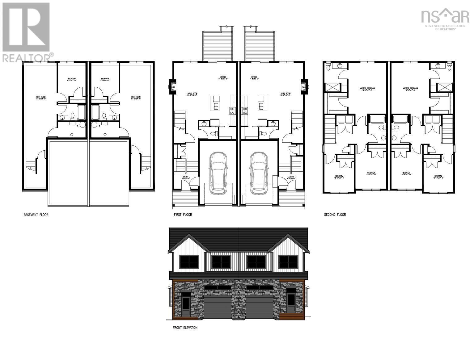
Meet "Charlotte", a beautifully designed 4-bedroom, 4-bathroom semi-detached home by Rooftight Construction in The Parks of Lake Charles. This thoughtfully crafted three-level layout blends functionality with modern style, offering the perfect balance of space and comfort. The main level features a traditional two-storey home feel with an attached garage, welcoming entryway, and convenient powder room. The open-concept kitchen and living room are ideal for entertaining, highlighted by a cozy natural gas fireplace. Upstairs, youll find three bedrooms, a full main bathroom, and a laundry area. The primary suite is a private retreat with a walk-in closet and ensuite bathroom. The basement level offers a fourth bedroom and an additional living space, perfect for guests, a home office, or a recreation area. Buyers will appreciate the choice of high-quality standard finishes as well as a range of upgrade options to personalize their home. Situated in a prime location, this community is just minutes from Mic Mac Bar & Grill, Shubie Park, Lake Banooks paddling clubs, scenic walking trails, major amenities, including Dartmouth Crossing. Dont miss your chance to own in this exciting new neighbourhoodbook your viewing today! (id:49203)
Property Details
| MLS® Number | 202601732 |
| Property Type | Single Family |
| Community Name | Dartmouth |
| Amenities Near By | Park, Playground, Public Transit, Shopping |
| Community Features | Recreational Facilities, School Bus |
Building
| Bathroom Total | 4 |
| Bedrooms Above Ground | 3 |
| Bedrooms Below Ground | 1 |
| Bedrooms Total | 4 |
| Appliances | Range - Electric, Dishwasher, Dryer, Washer, Refrigerator |
| Basement Development | Finished |
| Basement Type | Full (finished) |
| Construction Style Attachment | Semi-detached |
| Cooling Type | Wall Unit, Heat Pump |
| Exterior Finish | Stone, Vinyl, Other |
| Fireplace Present | Yes |
| Flooring Type | Carpeted, Laminate, Tile |
| Foundation Type | Poured Concrete |
| Half Bath Total | 2 |
| Stories Total | 2 |
| Size Interior | 2,389 Ft2 |
| Total Finished Area | 2389 Sqft |
| Type | House |
| Utility Water | Municipal Water |
Parking
| Garage | |
| Attached Garage | |
| Paved Yard |
Land
| Acreage | No |
| Land Amenities | Park, Playground, Public Transit, Shopping |
| Landscape Features | Partially Landscaped |
| Sewer | Municipal Sewage System |
| Size Irregular | 0.1779 |
| Size Total | 0.1779 Ac |
| Size Total Text | 0.1779 Ac |
Rooms
| Level | Type | Length | Width | Dimensions |
|---|---|---|---|---|
| Second Level | Primary Bedroom | 12.8 x 17 | ||
| Second Level | Ensuite (# Pieces 2-6) | 10.4 x 8.4 | ||
| Second Level | Bedroom | 10 x 10 | ||
| Second Level | Bedroom | 10 x 12.4 | ||
| Second Level | Bath (# Pieces 1-6) | 10 x 7 | ||
| Second Level | Laundry Room | Closet | ||
| Basement | Recreational, Games Room | 11 x 24 | ||
| Basement | Bedroom | 9.3 x 11 | ||
| Basement | Bath (# Pieces 1-6) | 9.3 x 5.11 | ||
| Main Level | Foyer | 8 x 5 | ||
| Main Level | Living Room | 12 x 19 | ||
| Main Level | Dining Room | 8.8 x 11 | ||
| Main Level | Kitchen | 8.8 x 10 | ||
| Main Level | Bath (# Pieces 1-6) | 4.7 x 6.7 +Jog |
https://www.realtor.ca/real-estate/29304247/smd-5a-42-simona-drive-dartmouth-dartmouth
Contact Us
Contact us for more information
Jacqui Rostek Holder
(902) 455-6738
platinumgrouphalifax.com/
www.facebook.com/JacquiAtRLPA/
www.linkedin.com/in/jacquiatrlp
twitter.com/REALTOR_Jacqui
www.instagram.com/realtor_jacqui/
84 Chain Lake Drive
Beechville, Nova Scotia B3S 1A2
(902) 453-1700
(902) 455-6738
www.royallepageatlantic.com/








































