Pt Lt 3 Effingham Street Fonthill, Ontario L2R 6P7

Acreage

$499,900

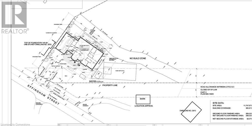
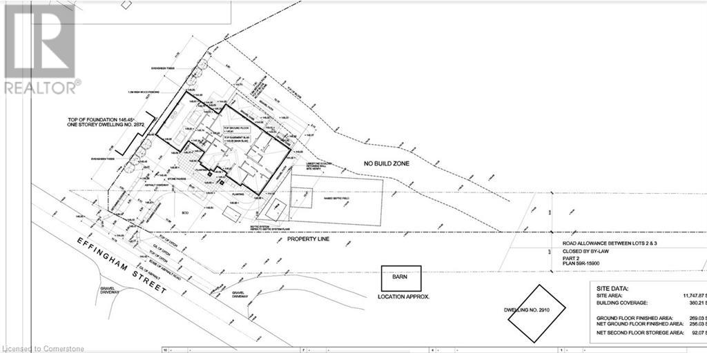
LOCATION, LOCATION, LOCATION! This fabulous 2.9-acre treed ravine lot is situated on the Niagara Escarpment. Build your dream home on Effingham Street, just a short walk from Short Hills and Henry of Pelham Estate Winery. The lot has frontage on both Effingham Street and Louth Townline Road, but the building envelope is on Effingham Street. It is located directly south of 2910 Effingham Street and directly east of 160 Louth Townline Road. Please park on Louth Townline Road, near the For Sale sign, to walk the property. The current owners have drawings for a 3,000 sq. ft. bungalow. Buyers are encouraged to conduct their own due diligence regarding building regulations and requirements. When walking the property please be careful and do so at your own risk. (id:49203)

Property Details

MLS® Number 40748189
Property Type Vacant Land
Features Country Residential

Building

Basement Type None
Utility Water None

Land

Acreage Yes
Sewer No Sewage System
Size Depth 721 Ft
Size Frontage 37 Ft
Size Total Text 2 - 4.99 Acres
Zoning Description Nec

https://www.realtor.ca/real-estate/28561383/pt-lt-3-effingham-street-fonthill

Contact Us

Contact us for more information

Generating Captcha

Judy Sweeting
Salesperson

(905) 512-3437
www.greaterniagararealty.com/

RE/MAX Garden City Realty Inc.
64 Main Street West
Grimsby, Ontario L3M 1R6

(905) 945-0660
(905) 945-2982
www.remax-gc.com/

Dekker Team
Privacy Overview

This website uses cookies so that we can provide you with the best user experience possible. Cookie information is stored in your browser and performs functions such as recognising you when you return to our website and helping our team to understand which sections of the website you find most interesting and useful.