5 Leighfield Drive Quispamsis, New Brunswick E2S 0E3
$684,900
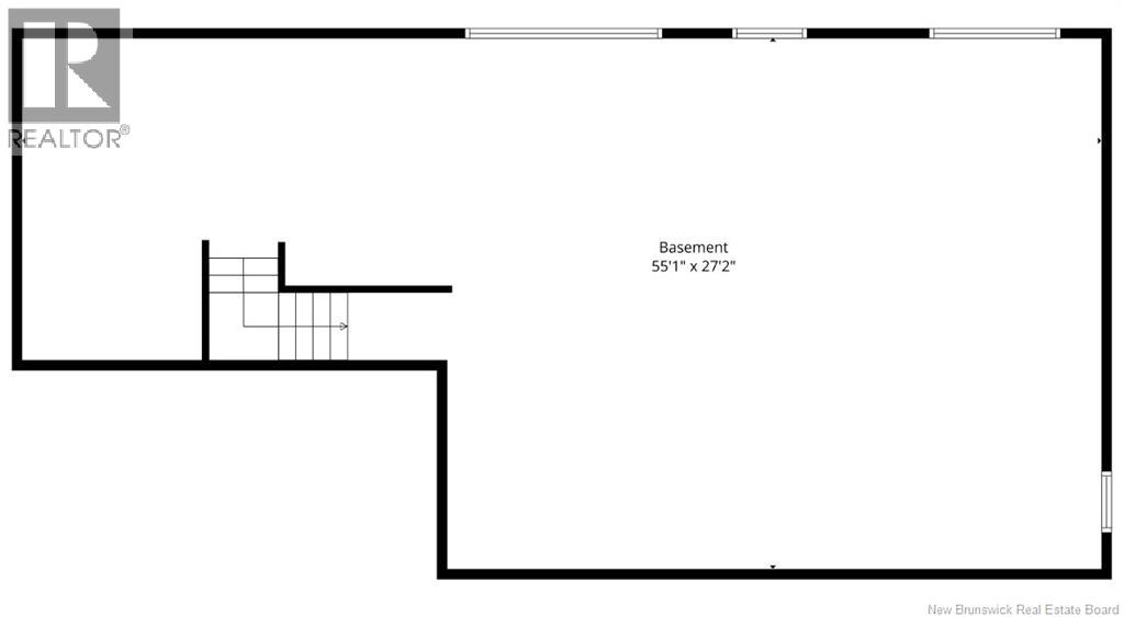
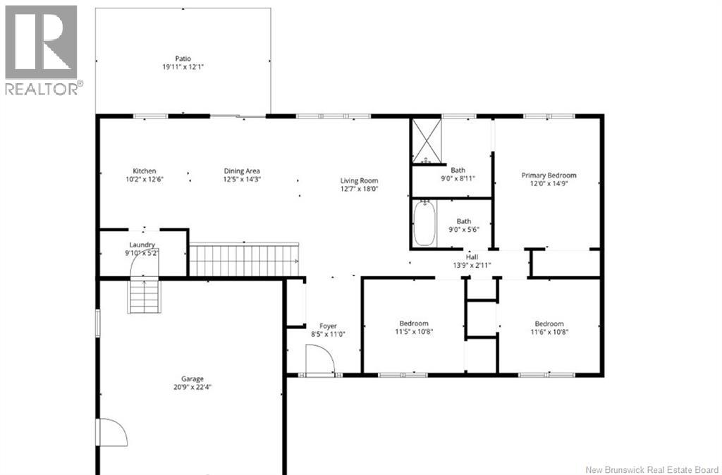
Nestled in one of Southern New Brunswicks most sought after communities, this three bed, two bath bungalow rests gently on a partially treed acre, a corner of quiet where light moves slowly and life feels spacious. With 1505 sq. ft. of finished living area, the home opens itself in a single, effortless level. Step through the foyer and into the great room, where 12' vaulted ceilings lift the eye and hardwood floors ground the space in warmth. Patio doors lead to a 12' x 20' covered deck, a place to gather, to linger, to watch the seasons turn. The kitchen blends clean lines with natural textures, quartz countertops, a butcher block island that is crafted for both beauty and everyday living. Main floor laundry keeps life simple. As evening settles, the primary suite offers a quiet retreat, complete with a custom tiled ensuite shower. Two additional bedrooms and a full bath welcome family or guests with ease. Cat6E wiring throughout ensures your connection to the world is as strong as your connection to home. Below, the lower level waits with possibility; rough in plumbing for a third bath, large egress windows, and the potential for another bedroom or in law suite. Owned ductless heat pumps on each level keep comfort constant, no matter the season. Minutes from highways, schools, trails, and amenities, this is East Coast living at its most effortless. Atlantic Home Warranty included. Some landscaping is to be completed. HST Included. (id:49203)
Property Details
| MLS® Number | NB131270 |
| Property Type | Single Family |
| Amenities Near By | Recreation Nearby |
| Features | Balcony/deck/patio |
| Road Type | Paved Road |
Building
| Bathroom Total | 2 |
| Bedrooms Above Ground | 3 |
| Bedrooms Total | 3 |
| Architectural Style | Ranch |
| Basement Development | Unfinished |
| Basement Type | Full (unfinished) |
| Constructed Date | 2026 |
| Cooling Type | Heat Pump |
| Exterior Finish | Vinyl |
| Flooring Type | Tile, Hardwood, Wood |
| Foundation Type | Concrete |
| Heating Type | Baseboard Heaters, Heat Pump |
| Size Interior | 1,505 Ft2 |
| Total Finished Area | 1505 Sqft |
| Type | House |
| Utility Water | Drilled Well, Well |
Parking
| Attached Garage | |
| Garage |
Land
| Access Type | Road Access |
| Acreage | Yes |
| Land Amenities | Recreation Nearby |
| Size Irregular | 48136 |
| Size Total | 48136 Sqft |
| Size Total Text | 48136 Sqft |
Rooms
| Level | Type | Length | Width | Dimensions |
|---|---|---|---|---|
| Main Level | Foyer | 11'0'' x 8'5'' | ||
| Main Level | 3pc Bathroom | X | ||
| Main Level | 3pc Ensuite Bath | X | ||
| Main Level | Primary Bedroom | 12'0'' x 14'9'' | ||
| Main Level | Bedroom | 11'6'' x 10'8'' | ||
| Main Level | Bedroom | 11'5'' x 10'8'' | ||
| Main Level | Laundry Room | 9'10'' x 5'2'' | ||
| Main Level | Great Room | 18'0'' x 12'7'' | ||
| Main Level | Dining Room | 12'5'' x 14'3'' | ||
| Main Level | Kitchen | 10'2'' x 12'6'' |
https://www.realtor.ca/real-estate/29365804/5-leighfield-drive-quispamsis
Contact Us
Contact us for more information
Joe Suppa
Salesperson
71 Paradise Row
Saint John, New Brunswick E2K 3H6
(506) 658-6440
(506) 658-1149
royallepageatlantic.com/














































