40 Elm Street Unit# 255 Sudbury, Ontario P3C 1S8
$10 / ft2
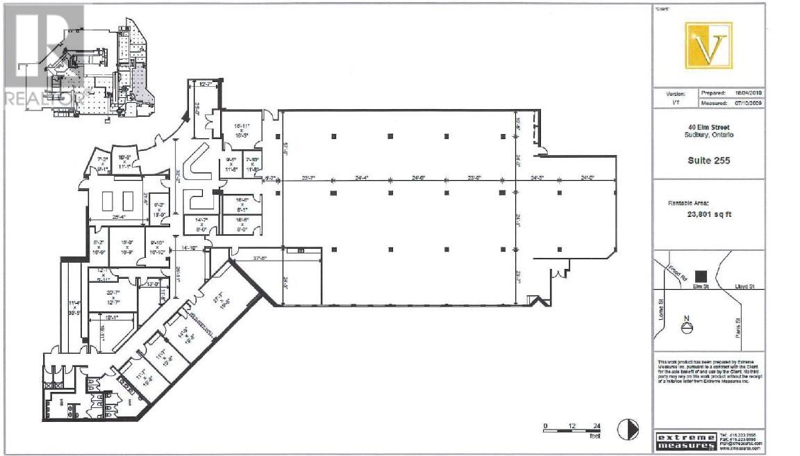
Located in the heart of Downtown Sudbury, Elm Place is a premier, high-traffic destination offering excellent visibility, a diverse tenant mix, and convenient access for both customers and employees. This Class A property provides flexible space options ranging from 200 to 50,000 square feet, accommodating businesses of all sizes and industries. Elm Place features Sudbury’s largest downtown parking facility, which has undergone significant upgrades. The three-story garage offers 950+ stalls, including ground-level, covered, and upper-level parking. The building has also undergone extensive renovations, boasting luxury finishes throughout its common areas, such as marble flooring, elegant cornice details, and more. On-site amenities enhance both tenant and visitor experiences, including a food court, gym, movie theatre, spa, and the Radisson Hotel. Conveniently accessible from Elm Street and Ste. Anne Road, this prime location benefits from a daily traffic count of 28,847 vehicles and foot traffic of approximately 5,000 people per day, ensuring exceptional exposure and accessibility. This impressive 24,724 sq. ft. Class A office space is designed for versatility and functionality. It features multiple private offices, open areas that are perfect for collaborative workspaces, all enhanced by high-end finishes. A beautifully designed reception area creates a professional first impression. This space is ready for customization to suit your business needs and can be demised to accommodate various layouts. Secure your space in one of Sudbury’s most dynamic commercial hubs! Contact us today for leasing details. (id:49203)
Business
| Business Type | Other, Retail and Wholesale |
| Business Sub Type | Offices, General retail |
Property Details
| MLS® Number | 2121464 |
| Property Type | Office |
| Equipment Type | Unknown |
| Rental Equipment Type | Unknown |
| Road Type | Paved Road |
Building
| Amenities | Air Conditioning, Exercise Centre, Secured Parking, Shopping Area |
| Cooling Type | Central Air Conditioning |
| Fire Protection | Controlled Entry |
| Type | Commercial Mix |
| Utility Water | Municipal Water |
Parking
| Visitor Parking |
Land
| Access Type | Highway Nearby, Year-round Access |
| Acreage | Yes |
| Sewer | Municipal Sewage System |
| Size Total Text | 3 - 10 Acres |
| Zoning Description | C6(4) |
https://www.realtor.ca/real-estate/28147574/40-elm-street-unit-255-sudbury
Contact Us
Contact us for more information
Krysta Lapointe
Salesperson
(705) 560-9492
1349 Lasalle Blvd Suite 208
Sudbury, Ontario P3A 1Z2
(705) 560-5650
(800) 601-8601
(705) 560-9492
www.remaxcrown.ca/
Steve Ricard
Salesperson
(705) 560-9492
(800) 601-8601
www.facebook.com/TheProTeamSudbury
1349 Lasalle Blvd Suite 208
Sudbury, Ontario P3A 1Z2
(705) 560-5650
(800) 601-8601
(705) 560-9492
www.remaxcrown.ca/





