195 Rykert Street St. Catharines, Ontario L2S 2B5
$599,999
Welcome to 195 Rykert Street, West St. Catharines-a home that's been lovingly owned and meticulously cared for by the same family for over 15 years, offering true peace of mind with an exceptional list of updates throughout. With over 1,700 sq ft of finished living space, this bright and inviting home features 3 bedrooms plus a versatile bonus room, perfect for a home office, playroom, or additional living area. Freshly painted and filled with natural light, the main floor shines with new windows and California shutters (2024), creating a clean, move-in-ready feel. Major upgrades include a new front deck on helical piles (2024), tankless hot water heater (2022), washer and dryer (2021), new appliances (2023), basement waterproofing (2023), furnace and air conditioning (2020), and a cozy gas fireplace (2021). An awning (2021) provides ample backyard shade, while a new 8' x 12' concrete shed pad (2025) adds practical outdoor functionality. Ideally located near the hospital, schools, shopping, and dining-and just minutes from Club Roma, Brock University, Short Hills Provincial Park, and Rockway Glen-this well-connected location is ideal for families seeking comfort, convenience, and long-term value. (id:49203)
Open House
This property has open houses!
2:00 pm
Ends at:4:00 pm
Property Details
| MLS® Number | X12833028 |
| Property Type | Single Family |
| Community Name | 462 - Rykert/Vansickle |
| Amenities Near By | Hospital, Park, Place Of Worship, Public Transit, Schools |
| Equipment Type | None |
| Features | Irregular Lot Size, Carpet Free |
| Parking Space Total | 5 |
| Rental Equipment Type | None |
| Structure | Deck, Porch, Shed |
Building
| Bathroom Total | 2 |
| Bedrooms Above Ground | 3 |
| Bedrooms Total | 3 |
| Age | 51 To 99 Years |
| Amenities | Fireplace(s) |
| Appliances | Water Heater, Water Heater - Tankless, Dryer, Microwave, Stove, Washer, Window Coverings, Refrigerator |
| Architectural Style | Bungalow |
| Basement Type | Full |
| Construction Style Attachment | Detached |
| Cooling Type | Central Air Conditioning |
| Exterior Finish | Brick |
| Fire Protection | Security System |
| Fireplace Present | Yes |
| Fireplace Total | 1 |
| Foundation Type | Poured Concrete |
| Heating Fuel | Natural Gas |
| Heating Type | Forced Air |
| Stories Total | 1 |
| Size Interior | 700 - 1,100 Ft2 |
| Type | House |
| Utility Water | Municipal Water |
Parking
| Attached Garage | |
| Garage |
Land
| Acreage | No |
| Fence Type | Fenced Yard |
| Land Amenities | Hospital, Park, Place Of Worship, Public Transit, Schools |
| Sewer | Sanitary Sewer |
| Size Depth | 120 Ft |
| Size Frontage | 79 Ft ,4 In |
| Size Irregular | 79.4 X 120 Ft |
| Size Total Text | 79.4 X 120 Ft |
| Zoning Description | R1 |
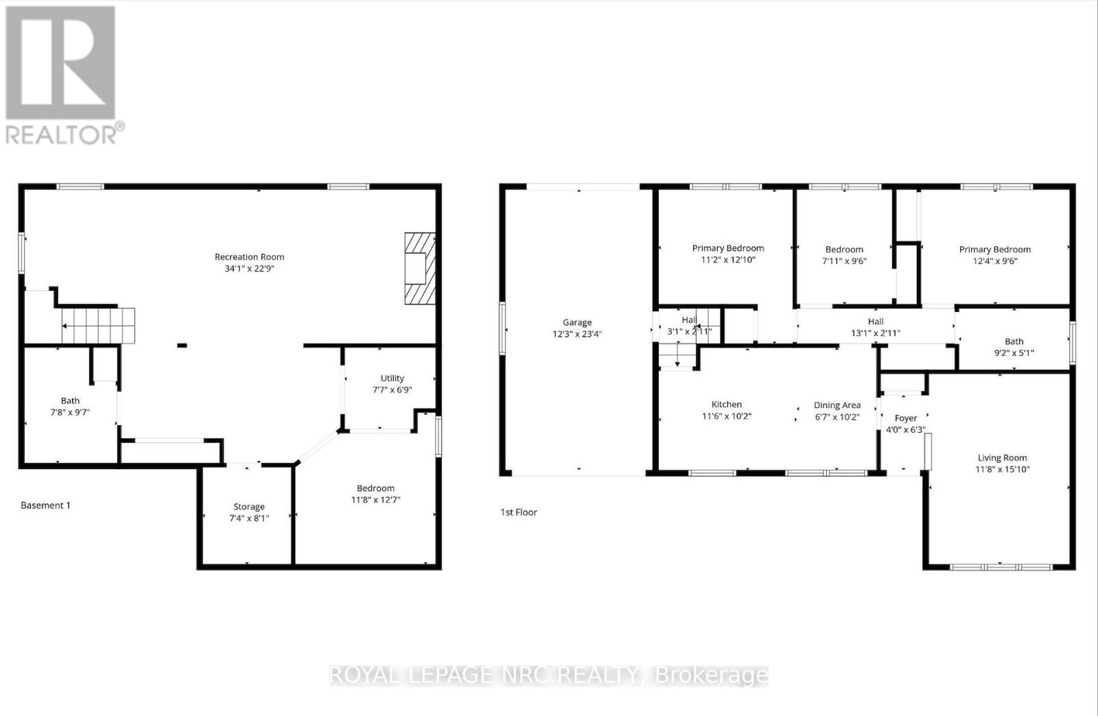
Rooms
| Level | Type | Length | Width | Dimensions |
|---|---|---|---|---|
| Lower Level | Office | 11.8 m | 12.7 m | 11.8 m x 12.7 m |
| Lower Level | Utility Room | 7.7 m | 6.9 m | 7.7 m x 6.9 m |
| Lower Level | Recreational, Games Room | 34.1 m | 22.9 m | 34.1 m x 22.9 m |
| Lower Level | Bathroom | 7.8 m | 9.7 m | 7.8 m x 9.7 m |
| Lower Level | Cold Room | 7.4 m | 8.1 m | 7.4 m x 8.1 m |
| Main Level | Foyer | 4 m | 6.3 m | 4 m x 6.3 m |
| Main Level | Living Room | 11.8 m | 15.1 m | 11.8 m x 15.1 m |
| Main Level | Dining Room | 6.7 m | 10.2 m | 6.7 m x 10.2 m |
| Main Level | Kitchen | 11.6 m | 10.2 m | 11.6 m x 10.2 m |
| Main Level | Bathroom | 9.2 m | 5.1 m | 9.2 m x 5.1 m |
| Main Level | Primary Bedroom | 12.4 m | 9.6 m | 12.4 m x 9.6 m |
| Main Level | Bedroom 2 | 7.11 m | 9.6 m | 7.11 m x 9.6 m |
| Main Level | Bedroom 3 | 11.2 m | 12.1 m | 11.2 m x 12.1 m |
Contact Us
Contact us for more information
Shannon Rose
Salesperson
www.facebook.com/shannonroserealtor
www.instagram.com/shannonroserealtor/
33 Maywood Ave
St. Catharines, Ontario L2R 1C5
(905) 688-4561
www.nrcrealty.ca/





































