152 Lakewood Crescent Strathmore, Alberta T0J 1Y0
$549,900
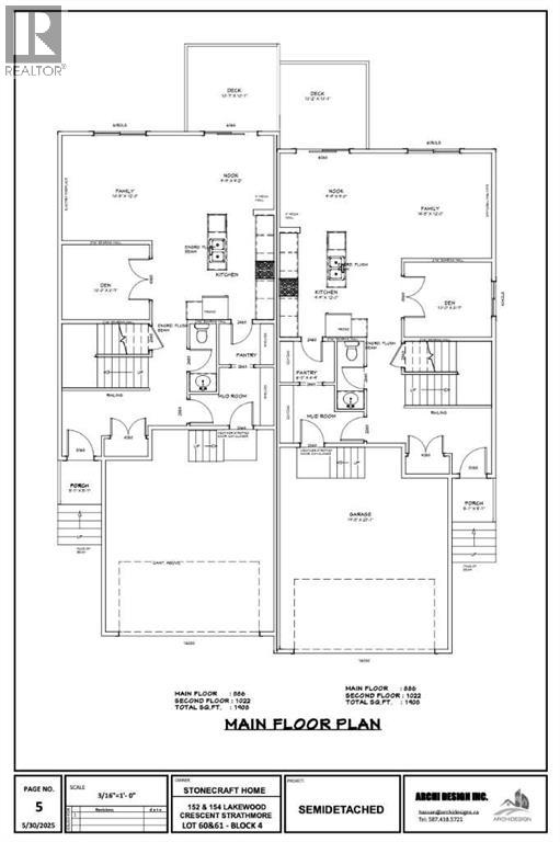
Brand-new, stylish design by Stonecraft Homes, move in ready early 2025. Builder offering Holiday inspired upgrades of full height kitchen cabinets up to ceiling, texture or high gloss. Quartz countertops, MDF built in closets and pantry, spindle hand railing, black hardware for doors and closets, waterproof vinyl flooring, electric fireplace, plus $1000 towards your choice of either moving costs, or blinds, or towards purchase of a washer dryer. To take advantage of this deal purchase by December 31, 2025. 152 With over 1900 square feet of developed living space, plus a unspoiled walkout basement! A bright, open-concept main floor features a contemporary kitchen with on-trend finishes and new appliances, main floor mud room, and a versatile den perfect for a home office. Upstairs, the layout offers thoughtfully designed laundry room, bonus room, 3 bedrooms and 2 full bathrooms, all finished with clean, modern touches that blend style with function. Every detail—from the flooring to the fixtures—reflects quality craftsmanship and current design trends. The basement is equipped for future development with a rough in for additional bathroom, and side exit entrance door. Appliance package & GST included. Located in Strathmore’s sought-after Lakewood community, this home puts you close to walking trails, parks, and natural green spaces while still offering easy access to schools with free busing and no catchment zones, shopping, and amenities. Enjoy the active, connected lifestyle that Lakewood and Strathmore provide, all while living in a brand-new home built for modern comfort. Don’t miss your chance to experience contemporary living at its best. Easy commute to Calgary. (id:49203)
Property Details
| MLS® Number | A2247803 |
| Property Type | Single Family |
| Community Name | Lakewood |
| Amenities Near By | Schools, Shopping |
| Parking Space Total | 2 |
| Plan | 00000001 |
| Structure | None |
Building
| Bathroom Total | 3 |
| Bedrooms Above Ground | 3 |
| Bedrooms Total | 3 |
| Appliances | Refrigerator, Dishwasher, Stove |
| Basement Development | Unfinished |
| Basement Type | Full (unfinished) |
| Constructed Date | 2025 |
| Construction Material | Wood Frame |
| Construction Style Attachment | Semi-detached |
| Cooling Type | None |
| Exterior Finish | Vinyl Siding |
| Flooring Type | Carpeted, Tile, Vinyl |
| Foundation Type | Poured Concrete |
| Half Bath Total | 1 |
| Heating Fuel | Natural Gas |
| Heating Type | Forced Air |
| Stories Total | 2 |
| Size Interior | 1,908 Ft2 |
| Total Finished Area | 1908 Sqft |
| Type | Duplex |
Parking
| Attached Garage | 2 |
Land
| Acreage | No |
| Fence Type | Not Fenced |
| Land Amenities | Schools, Shopping |
| Size Frontage | 11 M |
| Size Irregular | 360.00 |
| Size Total | 360 M2|0-4,050 Sqft |
| Size Total Text | 360 M2|0-4,050 Sqft |
| Zoning Description | R2 |
Rooms
| Level | Type | Length | Width | Dimensions |
|---|---|---|---|---|
| Main Level | Family Room | 14.42 Ft x 12.00 Ft | ||
| Main Level | Breakfast | 9.75 Ft x 9.17 Ft | ||
| Main Level | Den | 10.00 Ft x 8.58 Ft | ||
| Main Level | 2pc Bathroom | .00 Ft x .00 Ft | ||
| Upper Level | Primary Bedroom | 13.33 Ft x 15.58 Ft | ||
| Upper Level | 5pc Bathroom | 10.58 Ft x 9.00 Ft | ||
| Upper Level | Bonus Room | 14.33 Ft x 11.75 Ft | ||
| Upper Level | Bedroom | 9.42 Ft x 12.25 Ft | ||
| Upper Level | Bedroom | 9.00 Ft x 61.58 Ft | ||
| Upper Level | 4pc Bathroom | .00 Ft x .00 Ft | ||
| Upper Level | Laundry Room | 9.58 Ft x 5.33 Ft |
https://www.realtor.ca/real-estate/28729180/152-lakewood-crescent-strathmore-lakewood
Contact Us
Contact us for more information
Carey L. Rose
Associate
careyrose.com/
www.facebook.com/careyroseremax
www.linkedin.com/pub/carey-rose/2a/75a/52a
www.instagram/careyroseremax
1202 20 Dawson Wharf Mount
Chestermere, Alberta T1X 2Z5
(587) 316-2000
www.remaxkey.ca/






