15 Bellroyal Court Cole Harbour, Nova Scotia B2V 2B4
$719,900
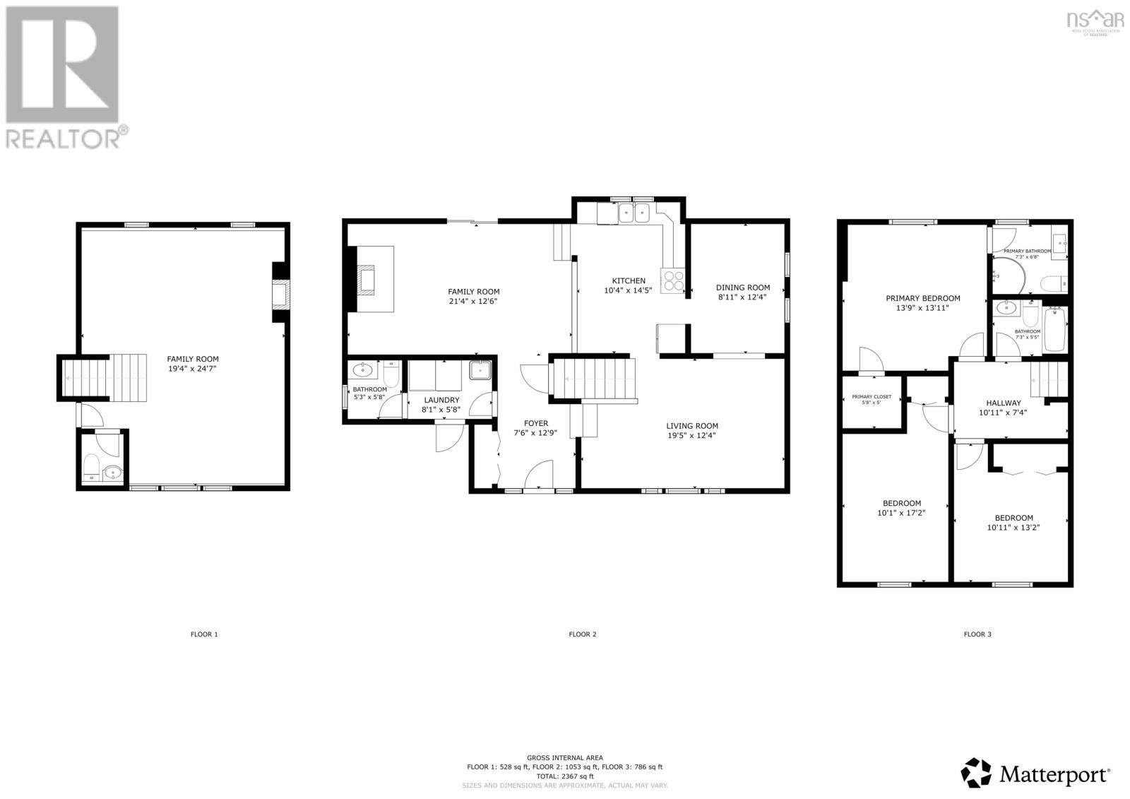
Welcome to 15 Bellroyal Court, located on a sought-after, quiet street in the community of Colby Village in Dartmouth. Located within walking distance from all necessary and exclusive amenities including great schools, playgrounds/parks, ball fields, tennis/basketball courts, Colby Pool, and Bissett Lake. Additionally, entry to the Trans Canada Trail is across the street, where you will spend endless hours enjoying the outdoors. The property features a private fully fenced backyard oasis, offering the perfect space for summer gatherings, kids, and pets. You will find a beautiful new composite rear deck, including a fantastic above ground heated swimming pool and large shed. With 3 bedrooms and 4 baths, this 4-level, 2,400 sq. Ft side split balances intimacy and scale. As you enter off the large front veranda area, you will find a bright front foyer with new ceramic flooring, which leads to the large family room where you can cozy up to the wood stove during those cold nights. Next level up you will find a bright open living room with ductless heat pump and dining room and a spacious kitchen with a large sitting counter area and new stainless style appliances. This open concept feel is perfect for entertaining and family fun. Upstairs you will find two large bedrooms, a 4-piece bath, the primary bedroom suite with a walk-in closet and 3 piece ensuite bath with an abundance of storage space. The lower level features a multifunctional large family room with built-in custom cabinets and an electric fireplace, ideal for movie night or family fun. It also includes a half bathroom and entry into an expansive utility and storage area, which could be used as an additional larger bedroom suite. You will absolutely fall in love with the style and layout of this home, the street, the family neighbourhood, and its convenient location to everything you need and the outdoors. Book your viewing now! (id:49203)
Property Details
| MLS® Number | 202602588 |
| Property Type | Single Family |
| Community Name | Cole Harbour |
| Amenities Near By | Park, Playground, Public Transit, Shopping, Place Of Worship |
| Community Features | Recreational Facilities, School Bus |
| Features | Level |
| Pool Type | Above Ground Pool |
| Structure | Shed |
Building
| Bathroom Total | 4 |
| Bedrooms Above Ground | 3 |
| Bedrooms Total | 3 |
| Appliances | Stove, Dishwasher, Dryer, Washer, Microwave, Refrigerator, Central Vacuum - Roughed In |
| Architectural Style | 4 Level |
| Basement Development | Partially Finished |
| Basement Type | Full (partially Finished) |
| Constructed Date | 1984 |
| Construction Style Attachment | Detached |
| Construction Style Split Level | Sidesplit |
| Cooling Type | Wall Unit, Heat Pump |
| Exterior Finish | Brick, Vinyl |
| Flooring Type | Carpeted, Ceramic Tile, Engineered Hardwood, Laminate |
| Foundation Type | Poured Concrete |
| Half Bath Total | 2 |
| Stories Total | 2 |
| Size Interior | 2,367 Ft2 |
| Total Finished Area | 2367 Sqft |
| Type | House |
| Utility Water | Municipal Water |
Parking
| Garage | |
| Attached Garage | |
| Paved Yard |
Land
| Acreage | No |
| Land Amenities | Park, Playground, Public Transit, Shopping, Place Of Worship |
| Landscape Features | Landscaped |
| Sewer | Municipal Sewage System |
| Size Irregular | 0.1515 |
| Size Total | 0.1515 Ac |
| Size Total Text | 0.1515 Ac |
Rooms
| Level | Type | Length | Width | Dimensions |
|---|---|---|---|---|
| Second Level | Primary Bedroom | 13..9 x 13..11 /96 | ||
| Second Level | Bedroom | 10..1 x 17..2 /96 | ||
| Second Level | Bedroom | 10..11 x 13..2 /96 | ||
| Second Level | Storage | 5..8 x 5. /96 | ||
| Second Level | Bath (# Pieces 1-6) | 7..3 x 5..5 /96 | ||
| Second Level | Ensuite (# Pieces 2-6) | 7..3 x 6..8 /96 | ||
| Lower Level | Family Room | 19..4 x 24..7 /36 | ||
| Lower Level | Bath (# Pieces 1-6) | 3..6 x 4..6 /36 | ||
| Main Level | Foyer | 7..6 x 12..9 /59 | ||
| Main Level | Living Room | 19..5 x 12..4 /36 | ||
| Main Level | Dining Room | 8..11 x 12..4 /36 | ||
| Main Level | Kitchen | 10..4 x 14..5 /36 | ||
| Main Level | Family Room | 21..4 x 12..6 /59 | ||
| Main Level | Laundry Room | 8..1 x 5..8 /59 | ||
| Main Level | Bath (# Pieces 1-6) | 5..3 x 5..8 /59 |
https://www.realtor.ca/real-estate/29349859/15-bellroyal-court-cole-harbour-cole-harbour
Contact Us
Contact us for more information
Glen Cluett
3845 Joseph Howe Drive
Halifax, Nova Scotia B3L 4H9
(902) 453-5552
(902) 455-8663
www.suttonhalifax.ca/

















































