1344 Dundas Street E Woodstock, Ontario N4S 7V9
$20 Monthly
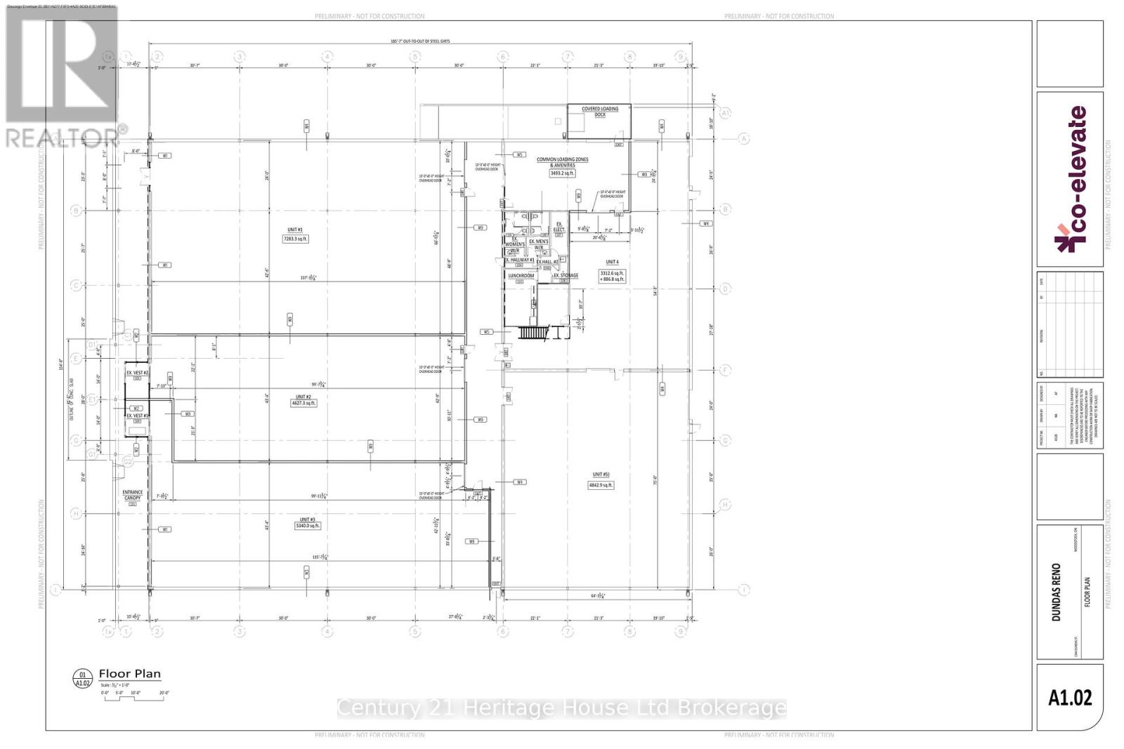
High-Exposure Commercial Opportunity - Woodstock, ON, Rare opportunity to acquire a standalone commercial building totaling over 29,000 SF on a 2.732-acre site with 208 ft of frontage on Dundas Street, Woodstock's primary commercial corridor. Located at a signalized intersection just off Hwy 401 and adjacent to Toyota Motor Manufacturing Canada, offering excellent visibility and access.Zoned M3-11, permitting a wide range of retail, commercial, warehousing, and light industrial uses. 24,000 SF of divisible space available. Building features include 18' clear height, 1 loading dock, 2 grade-level doors, 200A | 600V 3-phase power, sprinklered, LED lighting, pylon signage, and ~1 acre of fenced, secured outdoor storage. Surrounded by established industrial and retail users in a rapidly growing market.Ideal for owner-users, investors, or redevelopment. (id:49203)
Property Details
| MLS® Number | X12763830 |
| Property Type | Retail |
| Community Name | Woodstock - South |
Building
| Bathroom Total | 2 |
| Cooling Type | Fully Air Conditioned |
| Heating Fuel | Natural Gas |
| Heating Type | Forced Air |
| Size Interior | 24,000 Ft2 |
| Utility Water | Municipal Water |
Land
| Acreage | No |
| Size Depth | 579 Ft |
| Size Frontage | 207 Ft ,5 In |
| Size Irregular | 207.46 X 579 Ft |
| Size Total Text | 207.46 X 579 Ft |
| Zoning Description | M3-11 |
Contact Us
Contact us for more information
Franco Castellucci
Salesperson
865 Dundas Street
Woodstock, Ontario N4S 1G8
(519) 539-5646













