11 O'leary Street Campbellton, New Brunswick E3N 2X2
$249,900
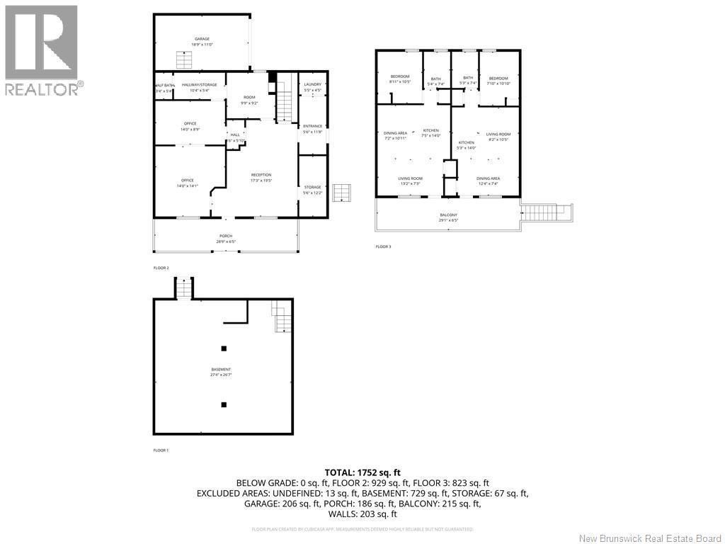
Welcome to 11 OLeary Street, a commercial/residential property ideally located in the heart of Campbellton. The main floor features a spacious commercial space with access to the basement and an attached garage, all currently used by the owner and generating no rental income. Upstairs, youll find two one-bedroom units, each with their own electrical meter. Unit 11A operates as an Airbnb , while Unit 11B is rented month-to-month with the tenant paying their own NB Power. The seller covers NB Power for the commercial space and 11A, as well as Wi-Fi, cable, and laundry for all three units. The building is equipped with three NB Powerrented hot water tanks, an alarm and camera system . Recent upgrades include heat pumps installed in 2023 for Units 11 and 11A, new eavestroughs on the north side in 2025, a redone driveway and new roof shingles in May 2024, and modern touches to the Airbnb unit. Tenants enjoy a shared balcony with stunning views of the J.C. Van Horne Bridge, and convenient coded access to a common washer and dryer located on the main level. Dont miss out on this rare downtown Campbellton opportunity offering both residential income and commercial potential! All measurements were taken using the CubiCasa app and window egress to be verified. (id:49203)
Property Details
| MLS® Number | NB129771 |
| Property Type | Multi-family |
| Equipment Type | Water Heater |
| Features | Level Lot, Balcony/deck/patio |
| Rental Equipment Type | Water Heater |
| View Type | Ocean View |
Building
| Appliances | Refrigerator, Stove, Washer, Dryer |
| Basement Development | Unfinished |
| Basement Features | Walk Out |
| Basement Type | Full (unfinished) |
| Cooling Type | Heat Pump |
| Exterior Finish | Metal, Vinyl |
| Fire Protection | Alarm System |
| Flooring Type | Ceramic, Laminate |
| Foundation Type | Concrete, Stone |
| Heating Fuel | Electric |
| Heating Type | Baseboard Heaters, Heat Pump |
| Stories Total | 2 |
| Size Interior | 1,818 Ft2 |
| Total Finished Area | 1818 Sqft |
| Type | Triplex |
| Utility Water | Municipal Water |
Land
| Acreage | No |
| Landscape Features | Landscaped |
| Sewer | Municipal Sewage System |
| Size Irregular | 390 |
| Size Total | 390 M2 |
| Size Total Text | 390 M2 |
https://www.realtor.ca/real-estate/29076523/11-oleary-street-campbellton
Contact Us
Contact us for more information
Zoe Pitre Levesque
Salesperson
205 Roseberry Street
Campbellton, New Brunswick E3N 2H4
(506) 759-9080
(506) 759-9094
www.remax-prestigerealty.com/
































