10 Belvedere Place Brockville, Ontario K6V 3A4
$1,250,000
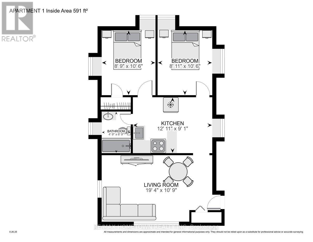
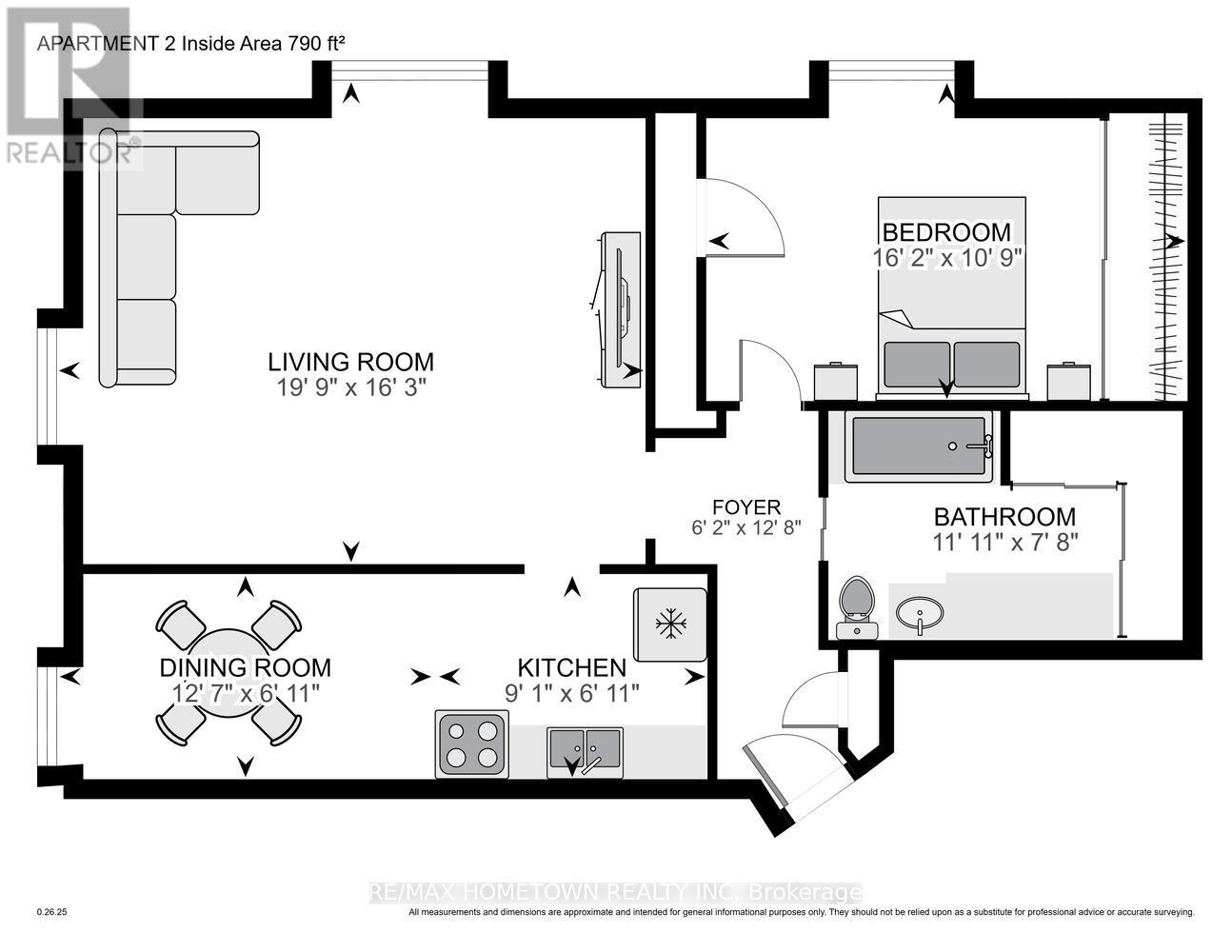
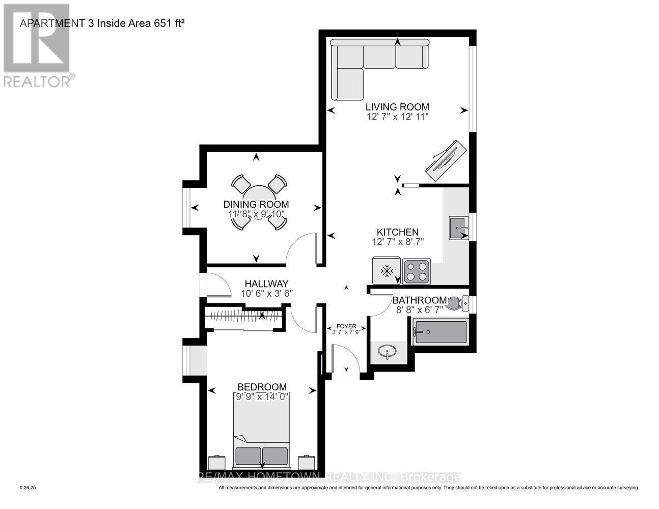
Take a look at this 12-unit building with six two-bedroom apartments and six one-bedroom apartments. One unit is all-inclusive, and every tenant has a dedicated parking space. All other tenants pay their own heat and hydro. Laundry facilities are available in the building, which adds convenience for tenants. The property sits in a lovely east-end neighborhood surrounded by single-family homes, with transit close by. Amenities are only a short drive away, and access to the 401 is quick and easy. This building offers strong upside and plenty of room for future income growth. All showings require at least 24 hours' notice. (id:49203)
Property Details
| MLS® Number | X12590036 |
| Property Type | Multi-family |
| Community Name | 810 - Brockville |
| Amenities Near By | Highway, Public Transit |
Building
| Age | 51 To 99 Years |
| Appliances | Water Heater |
| Cooling Type | None |
| Heating Type | Baseboard Heaters |
| Size Interior | 1 Acres |
| Type | Multi-family |
| Utility Water | Municipal Water |
Land
| Acreage | No |
| Land Amenities | Highway, Public Transit |
| Size Frontage | 168 Ft ,2 In |
| Size Irregular | 0.551 |
| Size Total | 0.551 Ac |
| Size Total Text | 0.551 Ac |
| Zoning Description | R-1 - Multiplex |
https://www.realtor.ca/real-estate/29150718/10-belvedere-place-brockville-810-brockville
Contact Us
Contact us for more information
Bambi Marshall
Salesperson
26 Victoria Avenue
Brockville, Ontario K6V 2B1
(613) 342-9000
(613) 342-2933
remaxhometown.com/



















































