45 Mary Street Collingwood, Ontario L9Y 0G8
$2,400,000
***BUILD IN PROGRESS*** Luxury Custom Home on Mary Street, Collingwood. Currently under construction by a quality local builder, this stunning custom home offers modern luxury and exceptional craftsmanship in one of Collingwood's most sought-after neighbourhoods. Thoughtfully designed for both comfort and elegance, the home features four spacious main-level bedrooms and an inviting second-floor loft with a private ensuite, perfect for a home office, guest suite or personal retreat. Designed for both grand entertaining and effortless daily living, the open concept layout ensures a seamless flow between the chef inspired kitchen, great room and outdoor spaces. Upon arrival, a stately covered porch with striking timber details will make a lasting impression, leading into an interior where luxury and functionality converge. The heart of the home is the designer kitchen, featuring an oversized island, premium finishes, and top-tier craftsmanship, while the adjacent great room will boast a soaring cathedral ceiling and a sophisticated stone fireplace, creating an inviting ambiance. Luxury continues throughout with solid wood craftsman-style doors, rich hardwood flooring and spa-inspired bathrooms with radiant heated floors and oversized porcelain tiles. Step outside to a sprawling timber-covered back deck, accessible from both the great room and primary suite, offering a private outdoor sanctuary. The fully finished lower level includes two additional guest rooms, a full bath, and a spacious recreation area with heated flooring for year round comfort. This is a rare opportunity to secure a brand-new, custom-built home in one of Collingwoods most sought-after neighborhoods. Act now to explore potential customization options and make this extraordinary residence your own. EXPECTED COMPLETION MID MARCH 2026. (id:49203)
Property Details
| MLS® Number | S12039966 |
| Property Type | Single Family |
| Community Name | Collingwood |
| Amenities Near By | Golf Nearby, Hospital, Ski Area |
| Community Features | School Bus, Community Centre |
| Equipment Type | None |
| Features | Flat Site, Sump Pump |
| Parking Space Total | 6 |
| Rental Equipment Type | None |
| Structure | Porch, Deck |
Building
| Bathroom Total | 5 |
| Bedrooms Above Ground | 4 |
| Bedrooms Below Ground | 2 |
| Bedrooms Total | 6 |
| Age | New Building |
| Amenities | Fireplace(s) |
| Appliances | Garage Door Opener Remote(s), Water Heater, Water Meter, Central Vacuum, Dishwasher, Dryer, Garage Door Opener, Microwave, Hood Fan, Stove, Washer, Refrigerator |
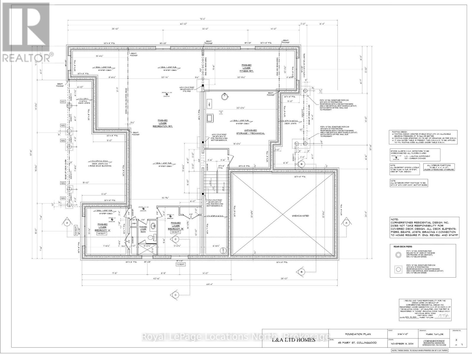
| Basement Development | Finished |
| Basement Type | Full (finished) |
| Construction Style Attachment | Detached |
| Cooling Type | Central Air Conditioning |
| Exterior Finish | Stone, Wood |
| Fire Protection | Smoke Detectors |
| Fireplace Present | Yes |
| Fireplace Total | 1 |
| Flooring Type | Tile, Hardwood, Carpeted |
| Foundation Type | Poured Concrete |
| Half Bath Total | 1 |
| Heating Fuel | Natural Gas |
| Heating Type | Forced Air |
| Stories Total | 2 |
| Size Interior | 3,000 - 3,500 Ft2 |
| Type | House |
| Utility Water | Municipal Water |
Parking
| Attached Garage | |
| Garage |
Land
| Acreage | No |
| Land Amenities | Golf Nearby, Hospital, Ski Area |
| Sewer | Sanitary Sewer |
| Size Depth | 169 Ft ,2 In |
| Size Frontage | 66 Ft ,10 In |
| Size Irregular | 66.9 X 169.2 Ft ; As Per Geowarehouse |
| Size Total Text | 66.9 X 169.2 Ft ; As Per Geowarehouse|under 1/2 Acre |
| Zoning Description | R2 |
Rooms
| Level | Type | Length | Width | Dimensions |
|---|---|---|---|---|
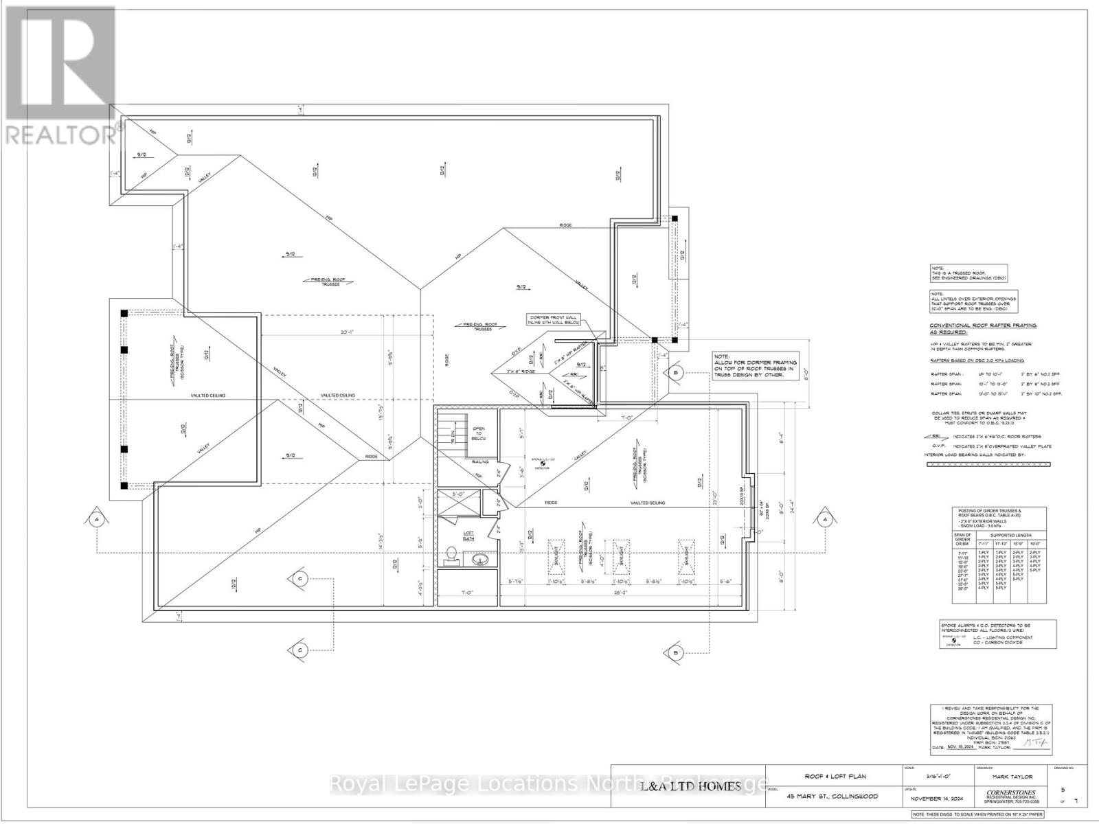
| Second Level | Loft | 8.59 m | 7.01 m | 8.59 m x 7.01 m |
| Second Level | Bathroom | 2.13 m | 2.69 m | 2.13 m x 2.69 m |
| Lower Level | Recreational, Games Room | 12.71 m | 8.74 m | 12.71 m x 8.74 m |
| Lower Level | Exercise Room | 6.24 m | 3.34 m | 6.24 m x 3.34 m |
| Lower Level | Bedroom | 4 m | 3.52 m | 4 m x 3.52 m |
| Lower Level | Bedroom | 3.66 m | 3.3 m | 3.66 m x 3.3 m |
| Lower Level | Bathroom | 1.54 m | 1.98 m | 1.54 m x 1.98 m |
| Lower Level | Utility Room | 6.09 m | 5.88 m | 6.09 m x 5.88 m |
| Main Level | Foyer | 3.38 m | 2.24 m | 3.38 m x 2.24 m |
| Main Level | Bathroom | 2.19 m | 1.1 m | 2.19 m x 1.1 m |
| Main Level | Living Room | 6.13 m | 5.98 m | 6.13 m x 5.98 m |
| Main Level | Kitchen | 4.36 m | 3.82 m | 4.36 m x 3.82 m |
| Main Level | Dining Room | 4.36 m | 5.35 m | 4.36 m x 5.35 m |
| Main Level | Primary Bedroom | 4.27 m | 5.47 m | 4.27 m x 5.47 m |
| Main Level | Bathroom | 4.94 m | 2.16 m | 4.94 m x 2.16 m |
| Main Level | Bedroom 2 | 3.51 m | 4.28 m | 3.51 m x 4.28 m |
| Main Level | Bedroom 3 | 3.91 m | 3.48 m | 3.91 m x 3.48 m |
| Main Level | Bedroom 4 | 3.51 m | 4.28 m | 3.51 m x 4.28 m |
| Main Level | Bathroom | 2.44 m | 2.34 m | 2.44 m x 2.34 m |
Utilities
| Cable | Available |
| Electricity | Installed |
| Sewer | Installed |
https://www.realtor.ca/real-estate/28070089/45-mary-street-collingwood-collingwood
Contact Us
Contact us for more information
Karen E Willison
Salesperson
112 Hurontario St
Collingwood, Ontario L9Y 2L8
(705) 445-5520
(705) 445-1545
locationsnorth.com/
Mary Law
Salesperson
112 Hurontario St
Collingwood, Ontario L9Y 2L8
(705) 445-5520
(705) 445-1545
locationsnorth.com/

















































